Меню
Отзывы гостей
anita64
10
30 августа 2017
наша семья осталась довольна
все есть для быта, живописная природа, чистый воздух
Показать весь отзыв Источник
9.8
Отлично
9.8
Отлично

База отдыха Каракан

На карте
9.8
Отлично
9.8
Отлично
Описание

База отдыха «Каракан» расположена в 120 км от г. Новосибирска в Искитимском районе с. Завьялово. Территория базы это 7 Га в рекреационной зоне, среди красот соснового леса, на берегу Караканского залива.

Чистый воздух, удивительная природа соснового бора, обское море. Устали от городского шума, суеты на работе, хочется отвлечься  от ежедневных проблем, окунуться в природу, база отдыха будет рада видеть вас в гостях.

До Оби 10 (м)

Номера

Дата заезда
Дата выезда
Количество гостей
1 гость
+
1 взрослый
Добавить ребенка
3 фото
Дом №1 20-местный (летний сезон), 2-3-местный номер
Проживание без питания
Цена
от 1 400
За ночь для 1 гостя
5 фото
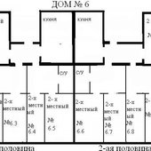
Доме №6 2-х местный номера (удобства на блок из 2-х комнат)
Телевизор
Ванная комната в номере
Проживание без питания
Цена
от 2 000
За ночь для 1 гостя
3 фото
Дом №5 20-местный (летний сезон), 6-местный номер
Проживание без питания
Цена
от 3 000
За ночь для 1 гостя
4 фото
Дом №4 9-местный
Телевизор
Ванная комната в номере
Проживание без питания
Цена
от 8 000
За ночь для 1 гостя
Загрузка...
Секундочку, поиск может занять некоторое время

Услуги и сервисы

Питание
Мангал
Организация мероприятий
Конференц-зал
Парковка
Автостоянка / Парковка
Детям
Детская площадка
Прокат
Весельные лодки
Спорт
Футбол
Волейбол
Настольный теннис
Зимний спорт
Каток
Лыжи
SPA
Баня

Условия проживания

Регистрация заезда
с 00:00
Регистрация выезда
до 00:00
Размещение детей, скидки для детей

Бесплатно без предоставления места до 2 лет

Необходимые документы

Путевка

Расположение на карте

Раскрыть

Как доехать на общественном транспорте

Новосибирская обл, Искитимский р-н, село Завьялово, Лесной пер 11

Широта 54°30′31″N (54.50853)
Долгота 82°25′45″E (82.429204)

Также вы можете посмотреть другие объекты в Новосибирской области
9.8
Отлично

Отзывы

Всего 4 отзыва
anita64
10
30 августа 2017
наша семья осталась довольна
Достоинства
все есть для быта, живописная природа, чистый воздух
Недостатки
нет
Комментарий
На эту турбазу мы попали случайно, ездили на природу в Караканский бор, нам нужен был ночлег. На просторах интернета мы нашли ближайшую турбазу "Каракан". Стояла середина августа, туристов было уже мало и нас без проблем разместили. Мы выбрали эконом-вариант, нас было трое и малыш полуторогодовалый. В номере находилось два дивана, стол, шкаф. Из-за дождя было прохладно, но у нас...
Показать весь отзыв Источник
К
Катя Семачева
9
24 апреля 2017
Достоинства
очень понравилась территория базы. С удовольствие гуляли по лесу, с дочкой развлекались на детской площадке, надышались сосновым воздухом вволю. Питались в столовой. Еды хватало. В домике чисто, убирают старательно.
Недостатки
скучновато, с маленьким ребёнком делать особо нечего.
Показать весь отзыв Источник
Д
Дмитрий Сидоров
10
24 апреля 2017
Достоинства
отдыхали мужской компанией, 9 человек. Отличная рыбалка на водохранилище, шикарная парилка. Администрация следит за территорией, чисто. Готовили сами, там прекрасно оборудованная кухня. Претензии разве что к комарам.
Показать весь отзыв Источник
В
Виктор Егорович
10
24 апреля 2017
Достоинства
Были двумя супружескими парами, повезло с погодой. В номере всё работало. Ехали на выходные, на лыжах покататься, шашлыки пожарить. Лыжня сказочная по сосновому бору, беседка с мангалом супер! Персонал ненавязчивый, да нам и не надо было ничего. Место – красава! Советую, но компанией, веселее.
Недостатки
Анимацией каждый занимается сам.
Показать весь отзыв Источник
Расположение
10.0/10
Соотношение цена/качество
9.67/10
Персонал
9.67/10
Чистота
0.0/10
Комфорт
9.67/10
Удобства
0.0/10
Питание
0.0/10
Качество мед. услуг
0.0/10